
Chìa khóa trao tay, gọi ngay
0915 010 800
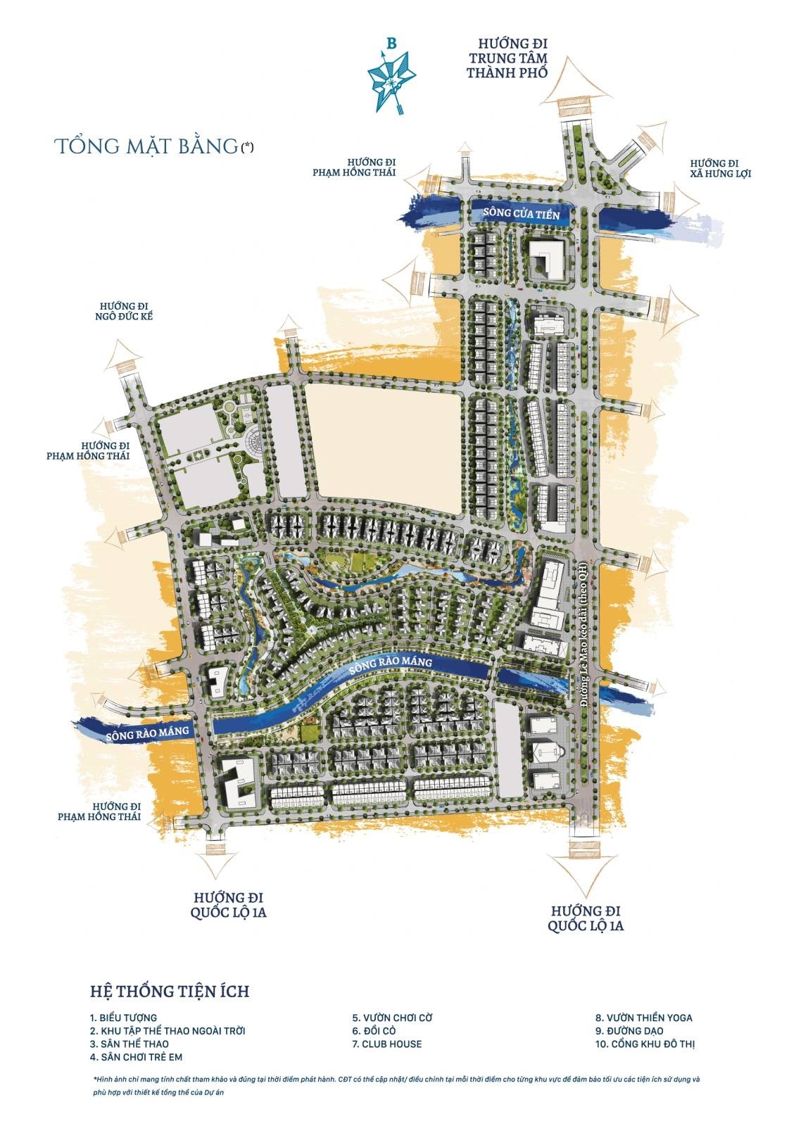
Khi nhắc đến những dự án bất động sản ấn tượng nhất tại thành phố Vinh, không thể không kể đến Vinh Heritage – khu đô thị sinh thái đa tầng tiên phong mang đến làn gió mới cho thị trường địa phương. Với quy mô lên đến 40.47ha, dự án này không chỉ đơn thuần là nơi an cư mà còn là một tác phẩm nghệ thuật kiến trúc được chăm chút tỉ mỉ.

Điều làm nên sức hút đặc biệt của Vinh Heritage chính là 1200m dòng sông nội khu uốn lượn xuyên suốt dự án, tạo nên một hệ sinh thái sống động hiếm có. Được phát triển bởi liên danh hai chủ đầu tư uy tín Mipec và Công ty Tràng An, dự án hướng đến mục tiêu trở thành biểu tượng mới của thành phố Vinh với tiêu chuẩn sống vượt trội.
Tọa lạc tại vị trí đắc địa phường Vinh Tân (nay là Trường Vinh), Vinh Heritage không chỉ thừa hưởng những lợi thế về vị trí mà còn được quy hoạch theo mô hình khu đô thị dự án hiện đại, nơi mỗi chi tiết đều được tính toán kỹ lưỡng để mang đến trải nghiệm sống hoàn hảo cho cư dân.
Xem thêm: Khu đô thị Kiến Hưng

Nếu ai từng đi qua tuyến đường Lê Mao kéo dài, chắc hẳn sẽ không thể không ấn tượng với Vinh Heritage – dự án nằm ngay trên trục huyết mạch mới này. Tuyến đường được ví như “con đường khát vọng của phố Vinh” với chiều dài 1.2km, kết nối trực tiếp từ trung tâm thành phố ra Quốc lộ 1A.
Vị trí này thực sự đặc biệt vì nó mang đến lợi thế kép hiếm có: vừa đủ gần để tiếp cận thuận tiện các tiện ích trung tâm, vừa đủ riêng tư để đảm bảo chất lượng sống yên tĩnh. Chỉ mất 5 phút di chuyển, cư dân có thể đến quảng trường trung tâm thành phố, trong khi các tiện ích quan trọng khác như trường học Vinh Tân (300m), bệnh viện thành phố (500m), hay chợ Vinh (1km) đều nằm trong tầm tay.

Đặc biệt, từ dự án chỉ cần 20 phút là có thể đến sân bay Vinh, tạo thuận lợi tối đa cho những chuyến công tác hay du lịch. Kết nối giao thông thuận tiện này không chỉ nâng cao chất lượng sống mà còn là yếu tố quan trọng tạo nên tiềm năng tăng giá bất động sản trong tương lai, đặc biệt với các sản phẩm biệt thự khu đô thị hà nội đang rất được ưa chuộng.
Khám phá: Khu đô thị Mizuki Park

Vinh Heritage được chia thành 3 phân khu độc đáo, mỗi khu mang một phong cách riêng biệt nhưng hài hòa trong tổng thể. Phân khu Giáng Hương với không gian yên tĩnh, phân khu Ruby sang trọng và phân khu Hoàng Yến sôi động với “con đường Hoàng Kim” độc đáo – nơi hàng cây hoàng yến vàng ươm tạo nên khung cảnh thơ mộng quanh năm.
Sản phẩm tại đây thực sự đa dạng để phù hợp với nhiều nhu cầu khác nhau. Biệt thự đơn lập với diện tích từ 360-420m², mặt tiền rộng 15m, mang đến không gian sống thoải mái cho những gia đình đa thế hệ. Trong khi đó, biệt thự song lập 209m² với thiết kế thông minh, tối ưu hóa không gian sống phù hợp với các gia đình trẻ.
Đặc biệt ấn tượng là dòng biệt thự đảo VIP và VVIP với diện tích lên đến 500m², sở hữu vị trí trái tim của dự án với tầm nhìn ra dòng sông nội khu thơ mộng. Đây thực sự là những “hòn ngọc” hiếm có dành cho những chủ nhân đẳng cấp.

Không thể không nhắc đến dòng shophouse với mặt tiền rộng thoáng, vừa ở vừa kinh doanh – một lựa chọn thông minh cho những ai muốn tối ưu hóa đầu tư. Tất cả các sản phẩm đều được thiết kế theo phong cách tân cổ điển kết hợp hiện đại, tạo nên vẻ đẹp vượt thời gian.
Điều làm nên sự khác biệt của Vinh Heritage chính là hệ sinh thái xanh được quy hoạch bài bản. Hệ thống cây xanh đa tầng không chỉ tạo cảnh quan đẹp mắt mà còn có khả năng hạ nhiệt tự nhiên lên đến 8 độ C so với bên ngoài – một lợi ích thiết thực trong khí hậu nóng ẩm của miền Trung.

Dòng sông Rào Máng tự nhiên kết hợp với hệ thống kênh nội khu nhân tạo tạo nên một mạng lưới thủy hệ sống động. Cư dân có thể tận hưởng những buổi sáng tản bộ bên dòng nước trong lành, hay những chiều hoàng hôn thư giãn trong không gian xanh mát.
Hệ thống tiện ích nội khu cũng rất đáng chú ý với clubhouse sang trọng, bể bơi 4 mùa, phòng tập gym hiện đại, sân thể thao đa năng. Đặc biệt, vườn thiền yoga và công viên dưỡng sinh mang đến không gian thư giãn tuyệt vời cho những ai yêu thích lối sống healthy.

Đối với các gia đình có trẻ nhỏ, khu vui chơi trẻ em an toàn và khu BBQ ngoài trời sẽ là nơi tạo nên những kỷ niệm đẹp. Hệ thống này được kết hợp với thiết kế thi công sân vườn chuyên nghiệp, tạo nên những không gian xanh hài hòa.
Tìm hiểu: Khu đô thị D’Capitale Trần Duy Hưng

Uy tín của chủ đầu tư luôn là yếu tố quan trọng hàng đầu khi quyết định đầu tư bất động sản. Vinh Heritage được phát triển bởi liên danh hai tên tuổi lớn: Mipec – công ty cổ phần hóa dầu quân đội với kinh nghiệm dày dặn trong lĩnh vực bất động sản cao cấp tại Hà Nội, và Công ty Tràng An – đơn vị am hiểu sâu thị trường địa phương Nghệ An.
Mipec đã để lại dấu ấn với loạt dự án nổi tiếng như Mipec Riverside, Mipec Towers tại Hà Nội. Sự kết hợp này mang đến sự cân bằng hoàn hảo giữa kinh nghiệm phát triển dự án lớn và hiểu biết về thị trường địa phương.

Về tiến độ thực hiện, dự án đã hoàn thiện hạ tầng kỹ thuật đồng bộ và bàn giao nhiều sản phẩm tại phân khu Giáng Hương, Hoàng Yến. Pháp lý minh bạch với sổ hồng lâu dài, giúp khách hàng hoàn toàn yên tâm về quyền sở hữu.
Đặc biệt, chủ đầu tư còn hợp tác với các công ty thiết kế nội thất uy tín để mang đến những giải pháp hoàn thiện toàn diện cho khách hàng.
Thành phố Vinh đang trong giai đoạn phát triển mạnh mẽ với định hướng trở thành trung tâm kinh tế, chính trị của vùng Bắc Trung Bộ. Vị trí của Vinh Heritage trên trục Lê Mao kéo dài chính là cửa ngõ quan trọng kết nối các khu vực phát triển mới với trung tâm cũ.

Sự phát triển của các khu công nghiệp lân cận, cùng với việc nâng cấp hạ tầng giao thông khu vực sẽ tạo động lực mạnh mẽ cho sự gia tăng giá trị bất động sản. Nhiều chuyên gia nhận định, các dự án có vị trí và quy hoạch tốt như Vinh Heritage sẽ có biên độ tăng giá ổn định trong dài hạn.
Đặc biệt, xu hướng sống xanh, sống chậm đang ngày càng được ưa chuộng. Những không gian sống như Vinh Heritage, với hệ sinh thái hoàn chỉnh và cộng đồng cư dân văn minh, sẽ ngày càng trở nên quý giá.

Cho những gia đình đang có kế hoạch thiết kế nội thất biệt thự, Vinh Heritage cung cấp nền tảng kiến trúc vượt trội để tạo nên những không gian sống đẳng cấp.
Tham khảo: Khu đô thị Pháp Vân

Một trong những giá trị cốt lõi của Vinh Heritage chính là cộng đồng cư dân văn minh đã được định hình qua nhiều năm phát triển. Đây không chỉ là nơi an cư mà còn là môi trường sống lý tưởng để nuôi dưỡng các thế hệ tương lai.
Hệ thống quản lý vận hành chuyên nghiệp 24/7 đảm bảo an ninh tuyệt đối cho cư dân. Từ hệ thống camera giám sát hiện đại đến đội ngũ bảo vệ được đào tạo bài bản, mọi chi tiết đều hướng đến mục tiêu tạo nên một không gian sống an toàn và riêng tư.
Môi trường giáo dục cũng rất được chú trọng với hệ thống trường học chất lượng cao ngay trong khu vực. Điều này tạo thuận lợi tối đa cho các gia đình có con em đang trong độ tuổi đi học, đồng thời góp phần nâng cao giá trị bất động sản khu vực.
So sánh: Khu đô thị Lạc Hồng Phúc

Nhiều cư dân tại Vinh Heritage đã chọn cách tạo dấu ấn cá nhân cho không gian sống của mình thông qua việc thiết kế nội thất theo phong cách riêng. BETAVIET, với hơn 15 năm kinh nghiệm trong lĩnh vực thiết kế nội thất và thi công, đã trở thành đối tác tin cậy của nhiều gia đình tại các khu đô thị cao cấp. Đội ngũ kiến trúc sư tại BETAVIET hiểu rõ đặc thù của từng loại hình nhà ở, từ thiết kế nội thất biệt thự đến shophouse, luôn mang đến những giải pháp tối ưu phù hợp với nhu cầu và ngân sách của mỗi gia đình. Để được tư vấn chi tiết về các gói thiết kế và thi công nội thất, quý khách có thể liên hệ hotline 0915010800.


Tư vấn chuyên sâu bởi nhà thiết kế, giám đốc thi công nhiều năm kinh nghiệm

Giảm tới 30% 300tr
Đồ nội thất nhập khẩu

Hỗ trợ thủ tục pháp lý
cấp phép xây dựng
Betaviet sẽ liên hệ để tư vấn Quý khách trong thời gian sớm nhất
Trân trọng cảm ơn!