
Chìa khóa trao tay, gọi ngay
0915 010 800
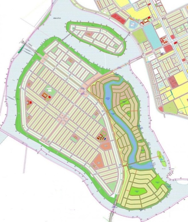
Han River Village không chỉ đơn thuần là một khu đô thị dự án thông thường, mà còn là biểu tượng mới cho sự phát triển bền vững tại thành phố biển xinh đẹp. Với quy mô lên đến 509 hecta, đây là khu đô thị sinh thái ven sông đầu tiên tại Đà Nẵng được quy hoạch theo tiêu chuẩn quốc tế.
Điều làm nên sự khác biệt của Han River Village chính là triết lý phát triển “sống cùng thiên nhiên”. Mật độ xây dựng chỉ chiếm gần 45% tổng diện tích, phần còn lại được dành cho công viên, cây xanh và mặt nước. Đây không phải con số ngẫu nhiên, mà là kết quả của việc nghiên cứu kỹ lưỡng để tạo ra môi trường sống lý tưởng nhất cho cư dân.

Vị trí độc đáo “tứ phía ôm sông” tạo nên vi khí hậu đặc biệt, mang lại cảm giác mát mẻ quanh năm. Cách bờ biển chỉ 1km, cư dân có thể dễ dàng tận hưởng không khí biển trong lành mỗi sáng thức dậy. Sun Group – chủ đầu tư với uy tín được khẳng định qua hàng loạt dự án đẳng cấp như InterContinental Danang, Bà Nà Hills – đã đầu tư tâm huyết để Han River Village trở thành tuyệt tác kiến trúc sinh thái mới tại Đà Nẵng.
Xem thêm: Khu đô thị Kiến Hưng
Tọa lạc tại phường Hòa Quý, quận Ngũ Hành Sơn, Han River Village nằm ngay trong trung tâm chiến lược phát triển đô thị về phía Nam của Đà Nẵng. Vị trí này không chỉ thuận tiện về mặt giao thông mà còn hội tụ những lợi thế độc đáo khó có thể tìm thấy ở nơi khác.

Cách sân bay quốc tế Đà Nẵng chỉ 4km, việc đi lại trở nên cực kỳ thuận tiện cho những gia đình có nhu cầu di chuyển thường xuyên. Khoảng cách tương tự đến trung tâm thành phố giúp cư dân dễ dàng tiếp cận các tiện ích đô thị hiện đại nhưng vẫn tận hưởng không gian sống yên tĩnh.
Đặc biệt, Han River Village như một cửa ngõ kết nối với những điểm du lịch nổi tiếng nhất miền Trung. Chỉ 1km đến khu du lịch tâm linh Ngũ Hành Sơn, 15km đến phố cổ Hội An đầy chất thơ, hay 30km đến “chốn bồng lai tiên cảnh” Bà Nà Hills. Cuối tuần, gia đình có thể thoải mái khám phá vẻ đẹp văn hóa và thiên nhiên mà không cần lập kế hoạch phức tạp.
Kết nối liên hoàn với khu đô thị sinh thái Hòa Xuân kế cận tạo nên một quần thể đô thị hiện đại, góp phần định hình diện mạo mới cho khu vực phía Nam thành phố. Đây chính là nền tảng để Han River Village trở thành trung tâm sống mới đầy tiềm năng.
Khám phá: Khu đô thị Mizuki Park

Được thiết kế bởi SaLa Design Group danh tiếng từ Anh, Han River Village thể hiện tầm nhìn xa của chủ đầu tư trong việc tạo ra một không gian sống đạt chuẩn quốc tế. Đội ngũ kiến trúc sư đã dành nhiều tháng nghiên cứu địa hình, khí hậu và văn hóa địa phương để tạo ra những thiết kế hài hòa với thiên nhiên.
Hệ thống giao thông nội bộ được quy hoạch khoa học với các tuyến đường có độ rộng từ 7,5m đến 40m, đảm bảo lưu thông thuận tiện cho các phương tiện. Đặc biệt, toàn bộ hệ thống điện được ngầm hóa, tạo nên cảnh quan đô thị trong lành và hiện đại. Điều này không chỉ đảm bảo tính thẩm mỹ mà còn nâng cao độ an toàn cho cư dân.
Quy hoạch phân khu chức năng rõ ràng tạo ra sự cân bằng hoàn hảo giữa không gian sống và giải trí. Khu biệt thự cao cấp được bố trí hài hòa xen kẽ với công viên văn hóa, khu vui chơi giải trí và trung tâm thương mại. Hệ thống trường học từ mầm non đến trung học cơ sở được đặt ở vị trí trung tâm, thuận tiện cho việc đưa đón con em.
Điểm nhấn đặc biệt là công viên ven sông chạy dọc theo chu vi dự án, tạo ra “vành đai xanh” bao quanh toàn khu. Đây sẽ là nơi cư dân thả bộ, tập thể dục buổi sáng và tận hưởng những phút giây bình yên bên dòng sông Hàn thơ mộng.

Han River Village mang đến sự lựa chọn phong phú với nhiều loại hình bất động sản khác nhau, phù hợp với đa dạng nhu cầu và khả năng tài chính của từng gia đình. Dự án quy hoạch tổng cộng 1.900 lô đất biệt thự và 7.000 lô đất nhà liền kề, tạo ra một cộng đồng cư dân đông đúc và sôi động.
Shophouse Nguyễn Phước Lan với 152 căn diện tích 195m² (7,5 x 26m) được thiết kế đặc biệt cho nhu cầu kinh doanh. Nằm tại trục đường chính kết nối với trung tâm thành phố, đây là vị trí vàng cho những ai muốn kết hợp an cư và kinh doanh. Thiết kế có khoảng sân vườn phía sau tạo điều kiện thuận lợi cho việc mở rộng không gian kinh doanh.
Đặc biệt, 35 căn shophouse ven sông là sản phẩm hiếm có tại Đà Nẵng với tầm nhìn sông 180 độ tuyệt đẹp. Diện tích 206m² (7,5 x 27,5m) cùng với lùi trước 7m tạo ra không gian thoáng đãng, phù hợp để vừa ở vừa kinh doanh nhà hàng, khách sạn hay homestay.
Nhà liền kề ven sông với 51 căn diện tích 105m² (5 x 21m) hướng đến những gia đình trẻ có thu nhập ổn định. Thiết kế đồng bộ và định hướng xây dựng cộng đồng cư dân văn minh sẽ tạo ra môi trường sống lý tưởng cho việc nuôi dạy con cái. Mỗi sản phẩm đều được thiết kế nhà phố theo tiêu chuẩn hiện đại, tối ưu hóa công năng sử dụng.
Tìm hiểu: Khu đô thị D’Capitale Trần Duy Hưng
Sống tại Han River Village, cư dân như được tận hưởng cuộc sống nghỉ dưỡng quanh năm với hệ thống tiện ích đa dạng và chất lượng cao. Phố đi bộ ven sông sẽ là địa điểm lý tưởng cho những buổi tối gia đình cùng nhau thả bộ, ngắm hoàng hôn đổ xuống mặt nước.
Hệ thống công viên ven sông không chỉ mang lại không khí trong lành mà còn là nơi tổ chức các hoạt động cộng đồng, lễ hội văn hóa. Hồ điều hòa cùng với vườn hoa cây xanh tạo ra vi khí hậu mát mẻ, giúp giảm nhiệt độ không khí trong những ngày hè nóng bức.
Đặc biệt chú trọng đến giáo dục, Han River Village xây dựng hệ thống trường học hoàn chỉnh từ mầm non, tiểu học đến trung học cơ sở ngay trong nội khu. Điều này không chỉ tiết kiệm thời gian đưa đón mà còn đảm bảo an toàn cho trẻ em khi đi học.
Hệ thống y tế chăm sóc sức khỏe, khu tập gym & yoga hiện đại giúp cư dân duy trì lối sống khỏe mạnh. Phòng sinh hoạt cộng đồng là nơi tổ chức các sự kiện, họp mặt, tạo cơ hội gắn kết giữa các gia đình trong khu.
Khu café và ẩm thực đa dạng sẽ là điểm đến cuối tuần lý tưởng, nơi gia đình có thể thưởng thức những món ngon trong không gian xanh mát. Tất cả những tiện ích thiết kế nội thất này được bố trí khoa học, tạo ra một môi trường sống hoàn hảo.
Tham khảo: Khu đô thị Pháp Vân
Han River Village không chỉ là nơi an cư lý tưởng mà còn là kênh đầu tư hấp dẫn với tiềm năng sinh lời cao trong dài hạn. Vị trí chiến lược trong quy hoạch phát triển Đà Nẵng về phía Nam đặt dự án vào vị trí trung tâm của những kế hoạch phát triển đô thị tương lai.
Sự gần gũi với các khu du lịch, làng đại học và làng thể thao tạo ra lợi thế cạnh tranh độc đáo. Khi ngành du lịch Đà Nẵng phục hồi và phát triển mạnh mẽ, nhu cầu về dịch vụ lưu trú, ăn uống và giải trí sẽ tăng cao, mở ra cơ hội kinh doanh cho chủ sở hữu các sản phẩm shophouse.
Đặc biệt, các căn biệt thự có hồ bơi và view sông có thể phát triển thành homestay cao cấp, đáp ứng nhu cầu nghỉ dưỡng của du khách trong nước và quốc tế. Thị trường cho thuê ngắn hạn tại Đà Nẵng đang phát triển mạnh mẽ, tạo ra dòng tiền ổn định cho nhà đầu tư.
Thông tin về giá bán đợt đầu chỉ từ 600 triệu đồng cho lô đất 100m² đã thể hiện sự cam kết của chủ đầu tư trong việc tạo cơ hội đầu tư cho nhiều đối tượng khách hàng. Các chính sách hỗ trợ vay vốn ngân hàng đến 70% cùng với chiết khấu hấp dẫn cho khách hàng thanh toán sớm càng tăng thêm sức hút của dự án.
Với sự đầu tư của Sun Group – một trong những tập đoàn uy tín nhất Việt Nam, vấn đề pháp lý của Han River Village được đảm bảo minh bạch và đầy đủ. Chủ đầu tư đã hoàn tất các thủ tục cần thiết, tạo điều kiện cho khách hàng yên tâm khi quyết định đầu tư.
Hiện tại, dự án đang trong giai đoạn gấp rút hoàn thiện hạ tầng kỹ thuật với tiến độ đạt khoảng 80%. Việc thi công hệ thống điện ngầm, đường giao thông nội bộ và cảnh quan đang được đẩy mạnh để đảm bảo bàn giao đúng cam kết.
Chính sách hỗ trợ vay vốn ngân hàng lên đến 70% giá trị lô đất cùng với thủ tục đơn giản, nhanh chóng tạo điều kiện thuận lợi cho khách hàng có nhu cầu tài chính. Khách hàng có thể ký hợp đồng mua bán trực tiếp với chủ đầu tư, đảm bảo quyền lợi và tính minh bạch cao nhất.
Kế hoạch hoàn thiện và bàn giao được Sun Group thực hiện theo lộ trình khoa học, ưu tiên hoàn thiện hạ tầng cốt lõi trước khi triển khai các hạng mục tiện ích. Điều này đảm bảo cư dân có thể chuyển đến sinh sống trong môi trường hoàn chỉnh và tiện nghi nhất.
So sánh: Khu đô thị Lạc Hồng Phúc
Lưu ý cho gia chủ mong muốn tạo nên không gian sống độc đáo
Sau khi hoàn tất việc sở hữu bất động sản tại Han River Village, nhiều gia đình mong muốn tạo ra không gian sống mang đậm dấu ấn cá nhân thay vì sử dụng thiết kế mẫu của chủ đầu tư. Với kinh nghiệm hơn 15 năm trong lĩnh vực thiết kế và thi công nội thất, BETAVIET hiểu rõ nhu cầu này của khách hàng.
Đội ngũ kiến trúc sư và designer của BETAVIET chuyên nghiệp trong việc tối ưu hóa không gian cho các loại hình bất động sản đa dạng, từ biệt thự, nhà phố đến shophouse. Mỗi dự án được thực hiện với sự tỉ mỉ và sáng tạo, đảm bảo phù hợp với lối sống và sở thích riêng của từng gia đình. Liên hệ 0915010800 để được tư vấn miễn phí các ý tưởng thiết kế phù hợp với ngôi nhà mơ ước của bạn tại Han River Village.


Tư vấn chuyên sâu bởi nhà thiết kế, giám đốc thi công nhiều năm kinh nghiệm

Giảm tới 30% 300tr
Đồ nội thất nhập khẩu

Hỗ trợ thủ tục pháp lý
cấp phép xây dựng
Betaviet sẽ liên hệ để tư vấn Quý khách trong thời gian sớm nhất
Trân trọng cảm ơn!